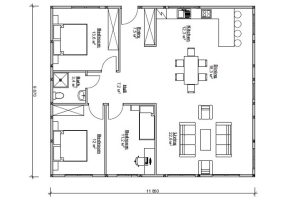
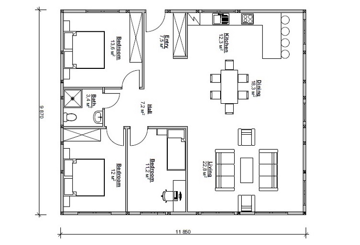
Holzhaus mit Mini Elementen 117
Erleben Sie das “Holzhaus mit Mini Elementen 117”, eine bezaubernde Verschmelzung von Natur und Handwerkskunst. Hergestellt aus hochwertigen Leimholz-Strukturen und verstärkt mit isolierten Wandpaneelen, sind diese charmanten kleinen Sommerhäuser Ihr ruhiger Rückzugsort während der warmen Monate.
Unsere Wahl von Leimholz-Strukturen garantiert unerschütterliche Haltbarkeit und Zuverlässigkeit, während die isolierten Wandpaneelen ein angenehmes Innenklima unabhängig von der Witterung im Freien aufrechterhalten. Diese kleinen Sommerhäuser dienen als idyllische Zufluchtsorte, ideal für Wochenendausflüge oder sogar dauerhaften Wohnsitz, und bieten die Gelegenheit, die Schönheit der Natur und die Ruhe des Landlebens zu genießen.
Angebot anfordern!
Holzhaus mit Mini Elementen 117 Hauspaket
Produktionszeichnungen
- Zeichnungen der Außenwände
- Fensterspezifikation
- Dachsparrenplan
- Produktionszeichnungen
- 3D-Modell des Hauses
Holzrahmen aus Leimholz
- Pfosten aus Leimholz 140x140mm bis 160x160mm
- Sparren aus Leimholz 120x160mm bis 120x240mm
- Verleimte Dachpfetten 140x240mm bis 160x360mm
- Streben und Diagonalen aus Leimholz

Gedämmte Außenwandelemente (MINI ELEMENTEN)
- Waagerechte Holzverkleidung Fichte AB
- Diffusionsoffene Unterspannbahn DELTA oder RIWEGA
- Holzkonstruktion KVH C24 / 45x95mm mit einem Achsabstand von 600mm
- 100mm Dämmung
- Dampfsperre

Dachkonstruktion
- Betondachsteine
- 30×45 mm Dachlattung
- 25 x 50 mm Konterlattung + USB-Tipp-Kontaktband
- Diffusionsoffene Unterspannbahn DELTA
- Holzverkleidung UYVk 18 x 145 / 18 mm OSB-Platten
- 150mm Dämmung
- Dampfsperre
Fenster und Terrassentüren
Wir verwenden das Brügmann bluEvolution 82 Fenstersystem
- Dreifachverglasung mit doppelter Hohlkammer
- Profilklassen S
- Äquivalenter Strahlungswiderstandskoeffizient von 12 GJ/m2
- Thermische Leistungskoeffizienten Uw-Wert = bis zu 0,50 W/(m2K)
- Uf-Wert = 0,95 W/(m²K

Innenwände
- Holzkonstruktion KVH C24 / 45x95mm
- 100mm Dämmung
Lieferung und Montage
Die Lieferzeit beträgt etwa 8-12 Wochen nach Bestätigung der technischen Zeichnungen.
Vor der Hausmontage müssen folgende Dinge vor Ort sein:
- Zugang für 40-Tonnen-Lkw
- Stromanschluss
- Möglichkeit zur Lagerung von Materialien vor Ort
Folgendes ist nicht im Lieferumfang enthalten und fällt daher in die Zuständigkeit des Kunden:
- Kran für Montage und Entladung
- Gerüst und Leitern
- Container für Entsorgung von Baustellenabfällen